Haus Wertbühl
- Umbau
- Planung, Farb- und Materialkonzept
- Istighofen
- 2022
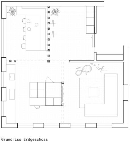
Wie soll Wohnen, Essen und Kochen einer wachsenden Familie zusammengesetzt werden und wie wird mit dem Bestand umgegangen? Das Projekt Haus Wertbühl zeigt, wie diese Komponenten harmonisch zusammenpassen können.





























