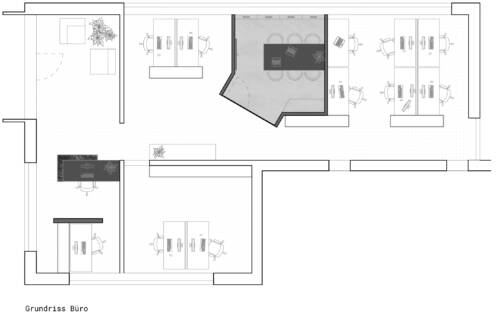
Bürowelt CE
- Büroerweiterung
- Raum in Raum Konzept
- Roggwil
- 2023
Für die neuen Räumlichkeiten der CE Concept Energy AG in Roggwil wurde eine zeitgemässe und effiziente Büroumgebung geschaffen. Der neue Empfangsbereich fungiert nicht nur als Begrüssungsort für Kunden und Geschäftspartner, sondern dient auch als Anlaufstelle für Mitarbeiter. Das Sitzungszimmer wurde so konzipiert, dass es die Bürolandschaft effektiv strukturiert und gleichzeitig ein flexibles und inspirierendes Umfeld für Besprechungen und Teamarbeit bietet.


























